SIMI VALLEY, CA - According to the City, the $2.4 million Simi Valley Transit Maintenance Facility project earned a GOLD LEED certification from the United States Green Building Council.
Read More →LAS CRUCES, NM – Doña Ana County is slowly growing its new hazmat fleet, which will be housed at the new Doña Ana County Emergency and Hazmat Response Station in Santa Teresa.
Read More →
GRAND RAPIDS, MI - A crane being used to construct an addition to the Kent County Correctional Facility collapsed Feb. 10, resulting in damages to the building and the nearby fleet facility.
Read More →PITTSBURGH – The Allegheny County Department of Public Works is closing one of its fleet garages, which houses County motor pool and sheriff’s department vehicles, due to structural problems.
Read More →VIRGINIA BEACH, VA - The City’s public works division concurred with the auditor’s findings and has already implemented a number of the recommended changes. The audit found no cases of fraud.
Read More →
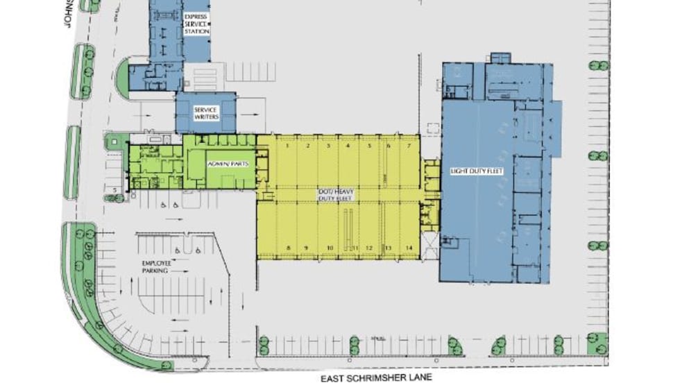
HUNTSVILLE, AL - The 26,694 square-foot heavy fleet facility expansion will complete the third phase of the City’s plan to improve fleet maintenance operations.
Read More →LAREDO, TEXAS - The City of Laredo's new fleet facility has been operational since early September.
Read More →
The Tire Squire tire cart features a three-wheel platform that allows users to lift no weight while transporting or parking the cart and tires.
Read More →
Lyon's complete line of high-density storage cabinets and accessories provide the maximum use of cubic space.
Read More →HILLSBORO, MO - The new facility, estimated to cost $2.96 million, would replace an old building constructed in 1950. Funding has not yet been approved.
Read More →